Skip to main content
Hit enter to search or ESC to close
Close Search
Menu
Menu
Montenegro-Ulicinj: Meterize bb
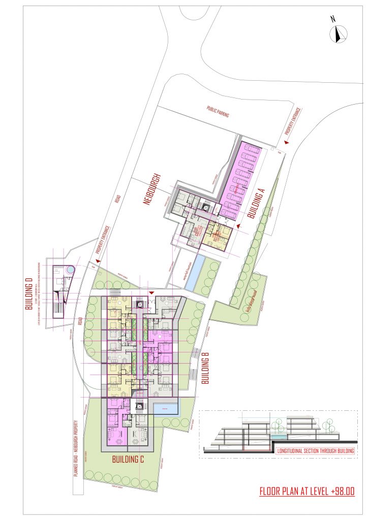
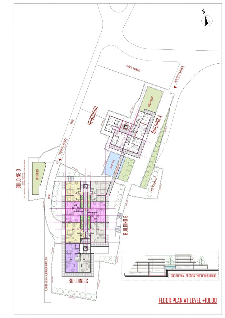
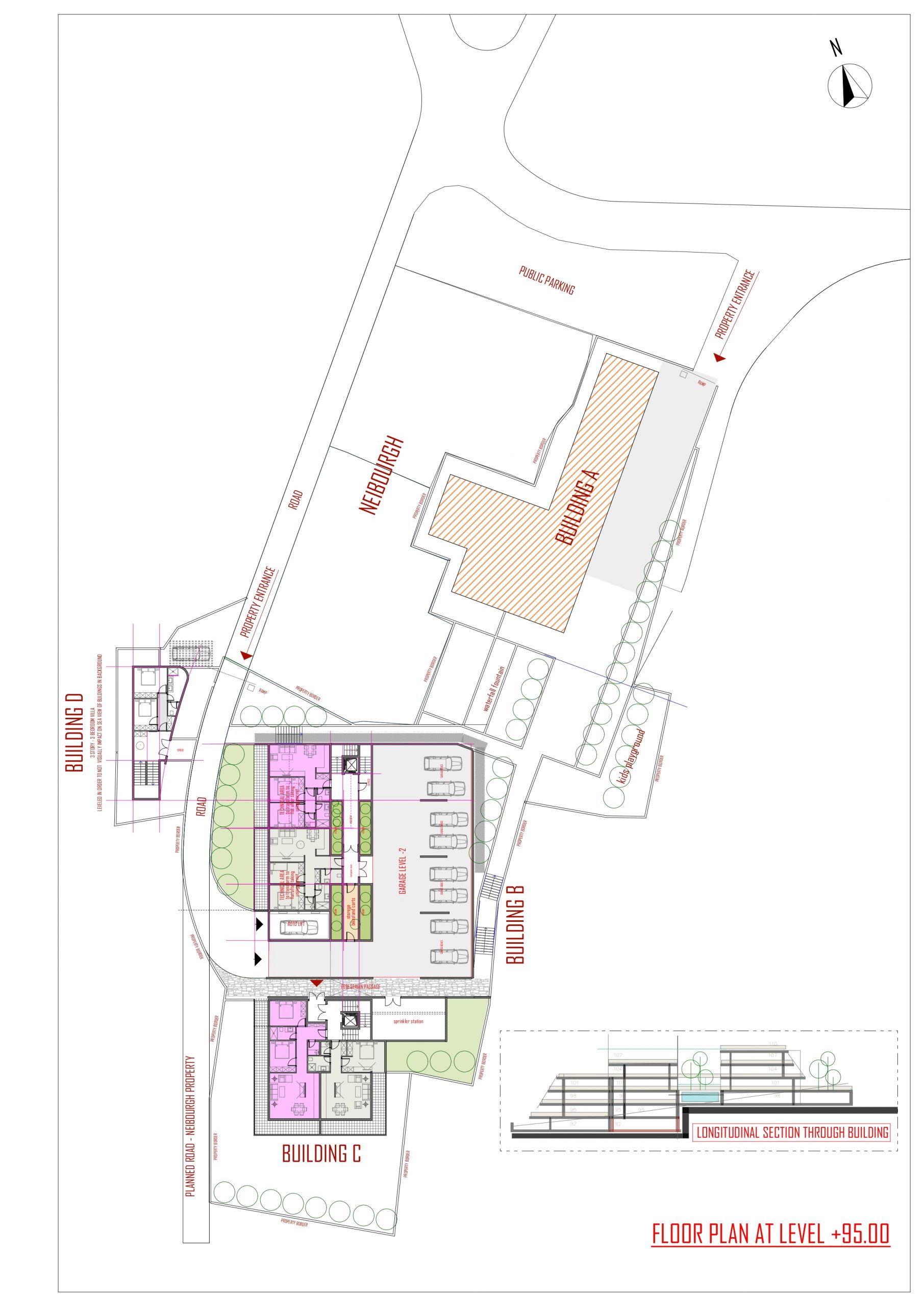
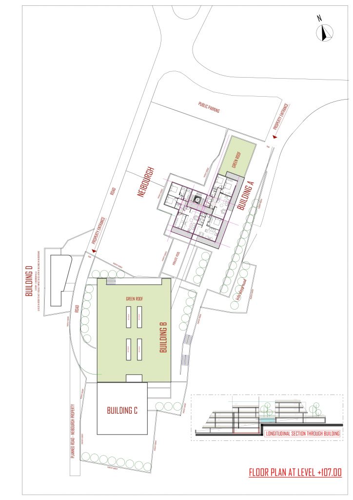
Umfang
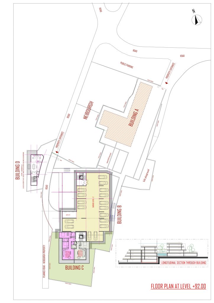
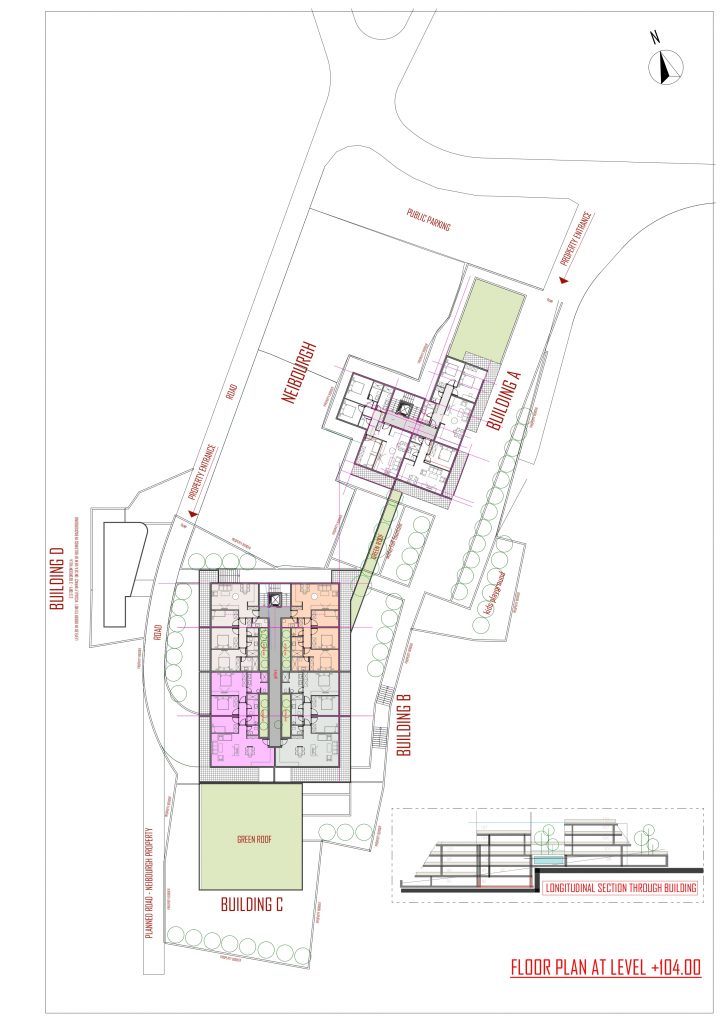
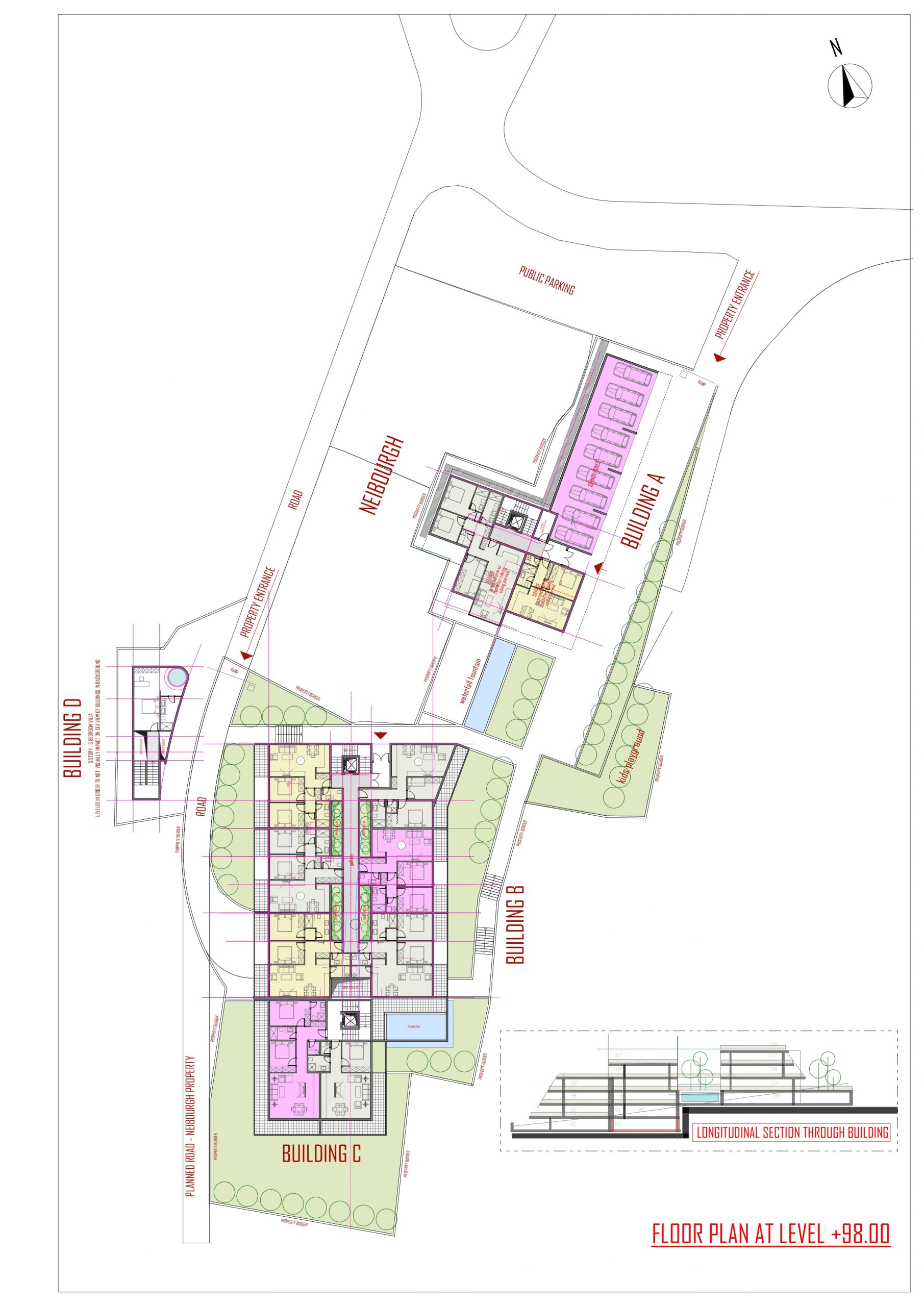
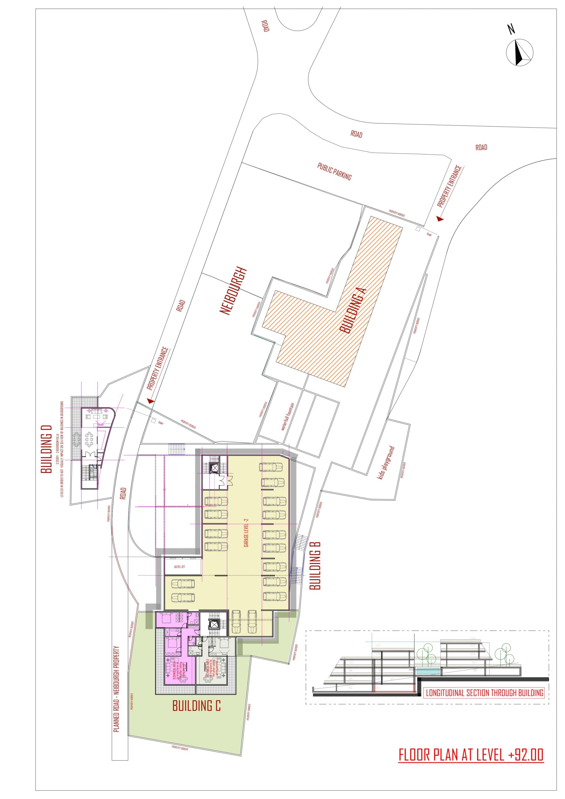
60 Wohnungen
Luxusapartments mit 180 Grad Blick auf die Adria
Apartmentgrößen zwischen 75 bis 120 qm
Vorheriges Projekt
Nächstes Projekt
Share
Tweet
Share
Pin
Close Menu
Über Uns
Projekte
Visionen
Kontakt